Zwei Alternativen: Dreieck oder Kreis. Aus dem Kreis lassen sich noch gut grössere Stücke aussägen z.B. zur Speichenform (siehe Bild Groundboard). Die 3 Klötze sind für die Füsse und können noch etwas über den Kreisrand hinausstehen - bringt zusätzlich Standfläche ohne Gewicht bei gleicher Stabilität. Gleiches geht natürlich auch beim Dreieck. In die Holzklötze kann man z.B. Metallknöpfe eindrücken, wie Sie häufig für Stuhlbeine Verwendung finden.
Home Home Home Equipment / Test Equipment / Test Equipment / Test Gebrauchtmarkt Gebrauchtmarkt Gebrauchtmarkt best links best links best links Beobachtungen Beobachtungen Beobachtungen Galerie Galerie Galerie Big Dipper? Big Dipper? Big Dipper? Little dipper Little dipper Little dipper Kontakt Kontakt Kontakt
© Big Dipper 2022
457mm f4.8 Dobson - Eigenbau aus „The Dobsonian Telescope - a practical manual for buildng large aperature telescopes
Das Dobson wurde nach der Bauanleitung aus „The Dobsonian Telescope - a practical manual for building large apertur telescopes“ gebaut. Die Bauanleitung führt zielsicher zu einem absolut funktionstüchtigen und perfekt gestyleden Newton-Dobson. Der Bau erfolgte in 15 Schritte und zwar von Design bis zur Starparty für das first light mit einigen Modifikationen entlang dieser Bauanleitung. Für die Konstruktion waren die Grössenverhältnisse wichtig. Insgesamt sind die von mir verwendeten Holzteil vergleichsweise massiv, was sich nicht als Nachteil erwiesen hat. Allerdings kann man (was ich nachträglich gemacht habe) noch einige Löcher aussägen - d.h. Material „herausnehmen“, was das Gewicht reduzieren nicht aber die Stabilität. Die notwenidgen Teile passen auf 5 handgeschriebene Zettel. Bezugsquellen: Hauptspiegel: Intes-Spiegel 457mm f 4,8 LK7 (russ. Pyrex), APM-Teleskopes Fangspiegel: Intes, 78mm, Sital, APM Teleskopes Hauptspiegelzelle:Teleskop-Service und Selbstbau Beschläge+Stangen: www.Rose+Krieger.de G. Neumann jun. (Endstücke Stangen) über Teleskop-Service Focuser: Feather-Touch-Focuser (Starlight Instrumensts) -APM-Teleskopes Fangspiegelhalterung: Teleskop-Service Holz: örtlicher Schreiner und - Baumarkt schwarze Farbe, Ebony, Teflon: G.Neumann jr. über Teleskop-Service Schrauben usw.: örtlicher Metallwaren-Händer Höhenräder: I K E A !!!! (da hat übrigens Peter Schluck das “copy-right d’rauf - das sind die einem vernünftigen Zweck zugeführten Beine des Sessels „Björket“. Den gibt‘s allerdings schon lange nicht mehr im Programm bei IKEA Gesamtkosten den Projekts gerne auf Anfrage Grüße Big Dipper
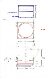
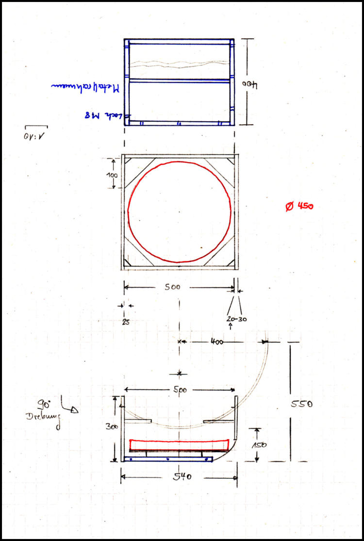
Oberer und unterer Ring CNC-gefrässt (vom Schreiner nach Mass). Das kleine Holzsbrettchen dient zur Aufnahme des Okularauszugs und wird bei der Montage der beiden Ringen eingeleimt und geschraubt - allerdings zuvor noch das Loch aussägen - am besten mit der Bohrmaschine und einer Kreis- Säge (für Steckdosen usw.) - aber Vorsicht muss zur Fangspiegelmitte passen. Das dünne Sperrholt zur Auskleidung des Hutes bekommt man z.B. in der Bastelabteilung im Baumarkt 1-2 mm reichen völlig und sind gut zur biegen. Schwarzlackierung nach der Montage des Sperrholzes - dann wellt sich nix. Achtung Grösse der Ringe hängt von der Grösse der Spinne für die Fanspiegelhalterung ab.
Zwei Holzringe wie beschrieben. In die Alu- Rohre werden auf jeder Seite Alu-Bolzen Länge z.B. 20 mm mit einem Mittelgewinde eingefügt z.B. M8, Die Bolzen können mit den Alu-Rohren verschraubt werden. So können Ober- und Unterring fest verschraubt werden (z.B. M8 Inbus-senkkopf). In die Alu-Rohre kommen noch Bohrungen für die Fangspiegel- halterung. Grundsätzlich sind die angege- benen Masse für einen sehr soliden Hut. etwas kleiner spart Gewicht am ganzen Teleskop
WICHTIG - Wenn in der Stärke des Materials variiert wird, ändern sich die Grundmasse, da die Rockerbox in das Groundboard passen muss. Die Seitenteile 300x540 haben einen Radius um später tiefer gelagert werden zu können. Das Rückteil hat ein Maß 300x500. Das Vorderteil hat eine geringere Höhe, was vom Radius abhängt. Wer Holz sparen will, braucht ein Mass 200x500. Die Dreiecke geben die Eckverstärungen der Rockerbox. Das grosse Brett 500x500 ist nur nötig, wenn man die Rockerbox geschlossen bauen will. Alternative ist die Rahmenkonstruktion aus Metall. Empfehlung: In die Steitenteile vor Montage gegenüben grosse Halteschlitze 30x80 einsägen, um die Box besser tragen zu können.
Die Höhe der Steitenteile wird zum Schluss genau bestimmt, wenn die Bauhöhe der Rockerbox und die Position der Höhenräder nicht mehr verändert wird. Das hängt vom Gewicht des Hutes der Gitterrohre usw. ab und auch davon, ob man Gegengewichte anbringen will. Dann kann die Höhe optimiert werden auf das, was nötig ist ggf. Platz für den Encoder mit einplanen. Den Radius der höhenräder überträgt man am besten mit einer Schblone aus das Holz - das Ganze muss nicht auf den Millimeter passen, das die Höhenräder später nur auch ein paar kleinen Teflonstücken aufliegen. Im Grundbrett die Mittenborhung nicht vergessen. auf die unterseite wird das Ebony aufgeklebt.
Die blaueTeile in der Handzeichnung sind Metallteile. Der Metallrahmen für die Speigel-halterung kann genau zur Speigelhalterung passen geschweisst werden. Die Lage der Höhenräder ist ein Kompromiss zwischen Gleichgewicht, Höhe der Box und damit des gesamten Teleskops und ggf. der Verwendung von Gegengewichten
IKEA Björket-Höhenräder
Staubschutz - Mörteleimer Encoder Chef-Inspekteur